Дополнительные услуги
Проверка и подготовка заявки на участие ЗастраховатьМенеджер продаж
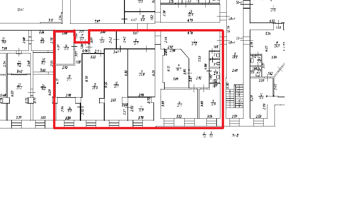
Аукцион на право заключения договора субаренды части здания, включающей в себя помещение 48-Н (комн. №№ 1-16) расположенное на 2 (втором) этаже Здания, площадью 258,5 (Двести пятьдесят восемь целых пять десятых) кв.м.
- Форма собственности
- Федеральная собственность
- Основание приватизации
- -
- Сведения о правообладателе
-
- Код организации
- 2200002705
- Полное наименование
- ФИЛИАЛ ФЕДЕРАЛЬНОГО ГОСУДАРСТВЕННОГО БЮДЖЕТНОГО УЧРЕЖДЕНИЯ КУЛЬТУРЫ "АГЕНТСТВО ПО УПРАВЛЕНИЮ И ИСПОЛЬЗОВАНИЮ ПАМЯТНИКОВ ИСТОРИИ И КУЛЬТУРЫ" ПО СЕВЕРО-ЗАПАДНОМУ ФЕДЕРАЛЬНОМУ ОКРУГУ
- ИНН
- 7705395248
- КПП
- 781943001
- ОГРН
- 1027739550156
- Тип организации
- Государственная организация
- Юридический адрес
- 198510, Г.САНКТ-ПЕТЕРБУРГ, Г. ПЕТЕРГОФ, УЛ. АВРОВА, Д. 2, ЛИТЕРА Б
- Фактический адрес
- 198510, г Санкт-Петербург, г Петергоф, ул Аврова Д. 2, ЛИТЕРА Б
На расчетный счет организатора аукциона не позднее дня окончания срока подачи заявок
Получатель: ОБЩЕСТВО С ОГРАНИЧЕННОЙ ОТВЕТСТВЕННОСТЬЮ "ТРЭВЭЛС" ИНН: 7826056320 КПП: 770201001 Номер расчётного счёта: 40702810372000003444 Банк: Ф. ОПЕРУ БАНКА ВТБ (ПАО) В САНКТ-ПЕТЕРБУРГЕ Номер корреспондентского счёта: 30101810200000000704 БИК: 044030704
Не позднее 17.12.25
Нет
В соответствии с аукционной документацией
В соответствии с аукционной документацией
В соответствии с аукционной документацией
Иной договор
5
Переменная часть арендной платы оплачивается Субарендатором в течение 5 (пяти) календарных дней с даты получения счета от Арендатора;
Оплата постоянной части арендной платы производится Субарендатором ежемесячно, не позднее 15-го числа оплачиваемого месяца.
В течение 15 (пятнадцати) рабочих дней со дня размещения на официальном сайте торгов протокола аукциона или протокола о признании единственного участника аукциона.
Здание является объектом культурного наследия федерального значения
90000
Под административно-хозяйственные цели
Да
Да
На расчетный счет организатора аукциона не позднее дня окончания срока подачи заявок
ООО «ТРЭВЭЛС»
Зайцева Ольга Владимировна
107031, Москва, б-р Рождественский, д.22/23, стр.1, 3 этаж, ком. 9
(812) 385 9341

