Каталог лотов
Перейти в каталог
Иное
196 лотов
Все лоты
07 Декабрь 2025
07:02:14
(МСК)

Опубликовано:

01.12.2025 12:21

Продажа БЦ Карьер

1 300 000 000 
Начальная цена 1 300 000 000 
Успей купить
 
Направление продаж
Имущество частных собственников
Вид процедуры
Аукцион с открытой формой подачи предложений
Код лота
РАД-436847
Код процедуры
256657
Регион
Москва
Адрес
Москва, Карьер ул, дом 2А
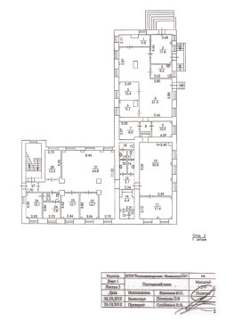
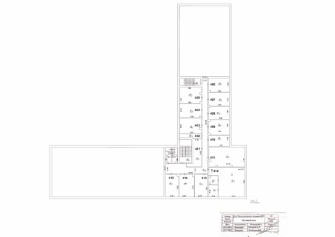
Продажа БЦ Карьер расположенного по адресу г. Москва, ул Карьер, вл 2А стр.1. с собственным зданием и земельным участком в долгосрочной аренде до 2052 года.?Общая информация об объекте: · Площадь земельного участка:13 690 м?; · Площадь здания: 10 315,7 м?; Планировка помещений – коридорно-кабинетная. Последние этажи в обоих корпусах – мансардные. Нижний этаж, - цокольный.?Бизнес-центр состоит из двух корпусов. Примечательный оранжево-серый фасад здания выгодно выделяет объект среди остальных строений.?Локация и транспортная доступность: Пятнадцать минут пешком до метро «Академическая» или станции МЦК «Крымская»; метро «Академическая», «Нагорная» и «Ленинский проспект» в десяти минутах езды на общественном транспорте; Профсоюзная улица (1,3 км) , ТТК (3 км), Ленинский проспект (3 км), Садовое кольцо – 6 км, МКАД – 12 км, что обеспечивает удобный проезд в центр города, в сторону МКАД и в близлежащие районы; небольшой парк «Новые Черемушки» находится в шаговой доступности.?Технические характеристики: В строении 1 установлен лифт AXEL грузоподъемностью 1000 кг или 13 человек (max). Ведется круглосуточная охрана с видеонаблюдением, 2 КПП Лифт: В строении 1 установлен лифт AXEL грузоподъемностью 1000 кг или 13 человек (max); Отопление: собственная новая котельная; Водоснабжение и канализация: центральные; Электроснабжение: 500 кВт; Парковка: своя внутренняя, охраняемая наземная парковка на 100 м/м;?Доступ в бизнес-центр: для арендаторов – по пропускам, для посетителей – по удостоверению личности; Охрана: круглосуточная охрана с видеонаблюдением; два КПП. Бизнес центр и финансовые показатели: Отделка помещений: офисные блоки предлагаются в арендус ремонтом (навесные потолки, освещение, линолеум, ковролин или плитка (на выбор), обои или окрашенные стены; Санузел: на этаже; цокольный этаж: столовая со вкусными, горячими обедами; Договор аренды: 11 месяцев; Заполняемость арендаторами: 95 %; ГАП - 120 млн/ год. В арендную ставку включены коммунальные расходы, НДС. Отдельно опл

Реквизиты Оператора

Для оплаты задатка и/или депозита отсканируйте QR-код в приложении банка (смотрите инструкцию) или используйте реквизиты

Общая информация

Факторы инвестиционной привлекательности Заполненность арендаторами 95%. ГАП - 120 млн. руб./год. Земельный участок в долгосрочной аренде до 2052 года , здания в собственности.
Коммерческое название объекта БЦ Карьер

Здание

Кадастровый номер 77:06:0002008:1024, 77:06:0002008:1048, 77:06:0002008:1155, 77:06:0002008:1156, 77:06:0002008:4870, 77:06:0002008:5195, 77:06:0002008:4669, 77:06:0002008:4872
Тип здания Бизнес-центр
Общая площадь здания (GBA) 10316.00
Количество этажей в здании 4.00
Класс офиса B
Текущее использование офисное здание
Вид права на здание / помещение Собственность
Отделка помещения Офисная

Коммерческие показатели

Наличие арендаторов сдано в аренду
Наличие арендного потока Да
Коэфф. заполняемости арендуемых площадей здания(ий) 95%

Инженерное обеспечение

вентиляция приточная
Кондиционирование центрального
Электроснабжение подведено электричество
Мощность, кВт 500
Водоснабжение Центральное

Окружение

Локальное окружение Бизнес-центр класса «В» в районе Академический ЮЗАО. Бизнес-центр находится в 15 минутах пешком от метро «Академическая» или станции МЦК «Крымская». От метро «Академическая», «Нагорная» и «Ленинский проспект» можно за десять минут добраться до офисов на общественном транспорте. Близость Профсоюзной улицы (1,3 км), ТТК (3 км) и Ленинского проспекта (3 км) определяет главные достоинства местоположения здания и обеспечивает удобный проезд в центр города, к МКАД и в соседние районы. Расстояние до Садового кольца – 6 км, до МКАД – 12 км. Рядом находится небольшой парк «Новые Черемушки».

Паркинг

Тип паркинга Открытая стоянка
Количество машиномест 100.00
Тип гаража Машиноместо

Менеджер продаж

Гоникберг Полина Эрнестовна
+79672464402
7 (967) 246-44-02
Для участия в аукционе Претендент вносит задаток в соответствии с условиями договора о задатке, форма которого размещена на сайте www.lot-online.ru в разделе «карточка лота», путем перечисления денежных средств на расчетный счет Оператора электронной площадки - акционерного общества «Российский аукционный дом» (ИНН 7838430413, КПП 783801001)
р/с № 40702810355000036459 в СЕВЕРО-ЗАПАДНЫЙ БАНК ПАО СБЕРБАНК, БИК 044030653, к/с 30101810500000000653 
Презентация.pdf , 03.12.25 16:52 Скачать
Заявка на участие в аукционе БЦ Карьер.docx , 01.12.25 12:21 Скачать (ЭП)
Договор о задатке БЦ Карьер.docx , 01.12.25 12:21 Скачать (ЭП)
ДКП.docx , 01.12.25 12:21 Скачать (ЭП)
Информационное сообщение_БЦ Карьер.docx , 01.12.25 12:21 Скачать (ЭП)
Онлайн-выписка помещение4872.pdf , 01.12.25 12:21 Скачать
Онлайн-выписка помещение 4669.pdf , 01.12.25 12:21 Скачать
Онлайн-выписка земельный участок (113).pdf , 01.12.25 12:21 Скачать
Онлайн-выписка земельный участок (69).pdf , 01.12.25 12:21 Скачать
Онлайн-выписка здание5195.pdf , 01.12.25 12:21 Скачать
Онлайн-выписка здание4870.pdf , 01.12.25 12:21 Скачать
Онлайн-выписка здание 1156.pdf , 01.12.25 12:21 Скачать
Онлайн-выписка здание 1155.pdf , 01.12.25 12:21 Скачать
Онлайн-выписка здание 1048.pdf , 01.12.25 12:21 Скачать
Онлайн-выписка здание 1024.pdf , 01.12.25 12:21 Скачать
АКЦИОНЕРНОЕ ОБЩЕСТВО "РАД-ХОЛДИНГ"
Гоникберг Полина Эрнестовна
199034, ГОРОД САНКТ-ПЕТЕРБУРГ, ЛН. 16-Я В.О., Д. 7, ОФИС 1409
gonikberg@radholding.ru
79219629031

Вас может заинтересовать

Начальная цена1 899 271 005 
Категория имущества
Офисные здания, БЦ
Статус лота
Идет прием заявок
Период приема заявок
28.10.2025 19:00 - 15.12.2025 23:30
Дата и время аукциона
16.12.2025 16:00 - 16.12.2025 17:00
Ждем Вас в нашем Telegram

Вы можете использовать мессенджер, установленный на любом устройстве - ПК, планшете или телефоне

Мобильное приложение РАД
Универсальная электронная площадка РАД в удобном формате мобильного приложения