Дополнительные услуги
Проверка и подготовка заявки на участие ЗастраховатьМенеджер продаж
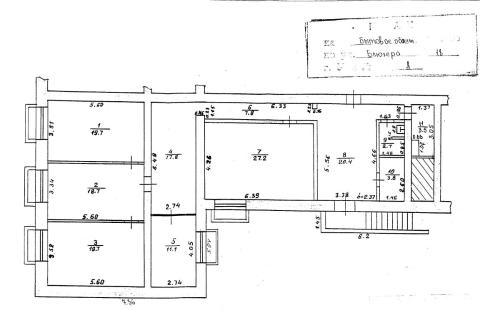
Аукцион в электронной форме по продаже имущества, находящегося в муниципальной собственности городского округа город Уфа Республики Башкортостан
- Форма собственности
- Муниципальная собственность
- Основание приватизации
- Постановление Администрации городского округа город Уфа Республики Башкортостан от 22.12.2025 №2549 «Об условиях приватизации объекта муниципального нежилого фонда – нежилых помещений цокольного этажа и подвала девятиэтажного жилого здания (кадастровые номера: 02:55:020211:5858, 02:55:020211:5838), расположенного по адресу: Республика Башкортостан, г. Уфа, Орджоникидзевский район, ул. Блюхера, 18».
- Сведения о правообладателе
-
- Код организации
- 2200001060
- Полное наименование
- УПРАВЛЕНИЕ ЗЕМЕЛЬНЫХ И ИМУЩЕСТВЕННЫХ ОТНОШЕНИЙ АДМИНИСТРАЦИИ ГОРОДСКОГО ОКРУГА ГОРОД УФА РЕСПУБЛИКИ БАШКОРТОСТАН
- ИНН
- 0276130085
- КПП
- 027601001
- ОГРН
- 1100280045546
- Тип организации
- Государственная организация
- Юридический адрес
- 450054, РЕСПУБЛИКА БАШКОРТОСТАН, Г. УФА, ПР-КТ ОКТЯБРЯ, Д. 56/3
- Фактический адрес
- 450054, Респ Башкортостан, г Уфа, р-н Октябрьский, пр-кт Октября д. 56, корп. 3
Согласно информационному сообщению
Получатель: АО "Российский аукционный дом" ИНН: 7838430413 КПП: 783801001 Номер расчётного счёта: 40702810055040010531 Банк: СЕВЕРО-ЗАПАДНЫЙ БАНК ПАО СБЕРБАНК Номер корреспондентского счёта: 30101810500000000653 БИК: 044030653
Согласно информационному сообщению
Согласно информационному сообщению
Согласно информационному сообщению
Согласно информационному сообщению
Согласно информационному сообщению
Порядок определения победителей указан в информационном сообщении, размещенном на официальном сайте продавца государственного имущества в сети «Интернет» www.auction-house.ru, сайте Оператора в сети «Интернет» www.lot-online.ru
Подведение итогов процедуры происходит на электронной торговой площадке, расположенной на сайте www.lot-online.ru, после проведения процедуры (поступления последнего предложения по цене)
Победитель/Единственный участник обязан сверх цены продажи Имущества в течение 5 (пяти) рабочих дней с даты подведения итогов продажи оплатить Продавцу в валюте Российской Федерации вознаграждение в связи с организацией и проведением продажи в размере 3% (три) процента ( НДС не облагается на основании пункта 1 статьи 145.1 НК РФ) от цены Имущества, определенной по итогам продажи, на счет Продавца по следующим реквизитам:
АО «Российский аукционный дом» ИНН 7838430413 КПП 783801001
р/счет 40702810855230001547 в Доп. офис № 9055/01726 Северо-Западного банка ПАО Сбербанк, г. Санкт-Петербург к/счет 30101810500000000653 БИК 044030653
В платежном поручении в части «Назначение платежа» плательщику необходимо указать «Оплата вознаграждения Продавцу. Код лота ________ (указать код лота на электронной площадке www.lot-online.ru), продажа «___»__ 202_г., НДС не облагается
Согласно п.4 ст.448 ГК РФ организатор вправе отказаться от проведения процедуры не позднее чем за три дня до наступления даты ее проведения
Осмотр Объекта производится по месту нахождения имущества без взимания платы и обеспечивается Продавцом в рабочие дни в период срока подачи заявок по предварительному согласованию (уточнению) времени проведения осмотра на основании обращения претендента. Телефоны специалистов для согласования сроков осмотра, а также для получения дополнительной информацией об участии в аукционе, о порядке проведения аукционе: 8 (967) 246-44-35, звонки принимаются в рабочие дни с 09:00 до 17:00 (МСК +2)
не зарегистрированы
5 (пять) рабочих дней с даты проведения процедуры.
Договор купли-продажи
Согласно информационному сообщению
АО "РАД"
190000, Санкт-Петербург, пер.Гривцова, д.5, литер. В
8(812)7775757

