Дополнительные услуги
Проверка и подготовка заявки на участие ЗастраховатьМенеджер продаж
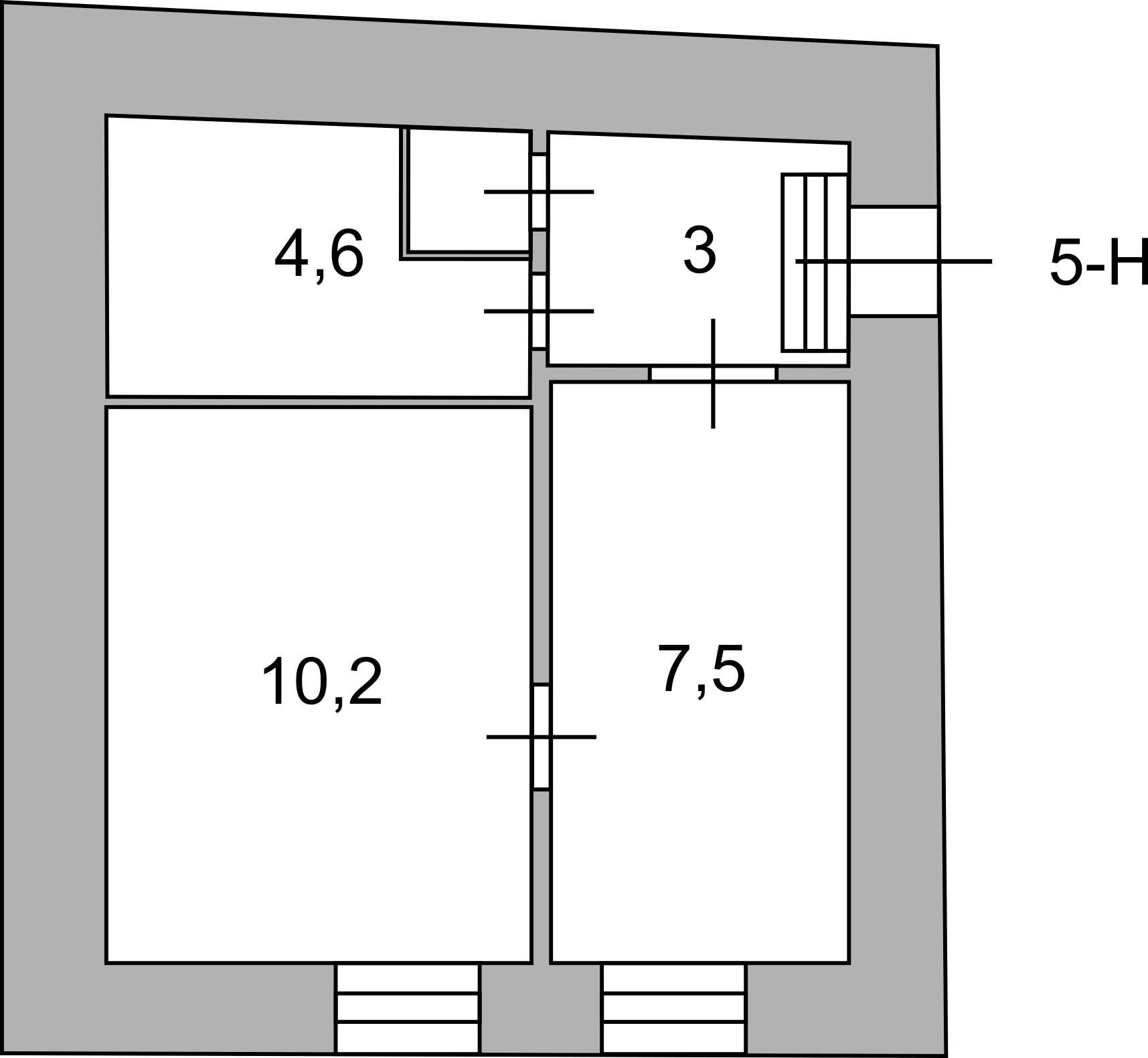
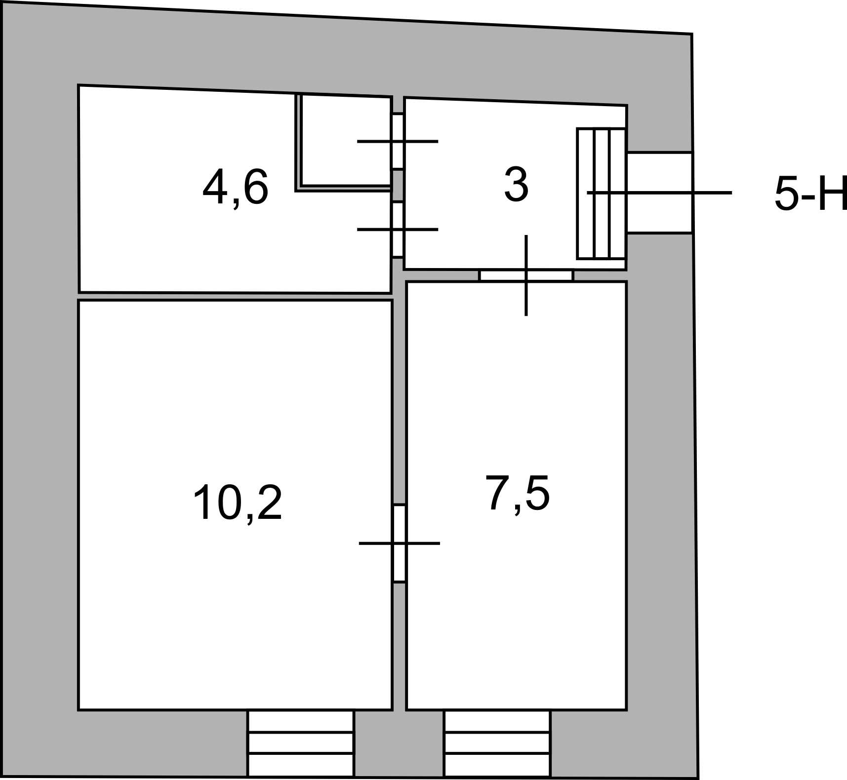
Нежилое помещение, расположенное по адресу: Санкт-Петербург, ул. Подольская, д. 41, литера. Б, пом. 5-Н
- Форма собственности
- Собственность субъектов РФ
- Основание приватизации
- Распоряжение КИО от 14.11.2025 № 3189-рз «Об условиях приватизации объекта нежилого фонда по адресу: Санкт-Петербург, Подольская улица, д. 41, литера Б, пом. 5-Н»
- Сведения о правообладателе
-
- Код организации
- 2100001521
- Полное наименование
- КОМИТЕТ ИМУЩЕСТВЕННЫХ ОТНОШЕНИЙ САНКТ-ПЕТЕРБУРГА
- ИНН
- 7832000076
- КПП
- 784201001
- ОГРН
- 1027809244561
- Тип организации
- Государственная организация
- Юридический адрес
- 191144, ГОРОД САНКТ-ПЕТЕРБУРГ,УЛИЦА НОВГОРОДСКАЯ д. ДОМ 20, корп. ЛИТЕР А, кв. ПОМЕЩЕНИЕ 2-Н
- Фактический адрес
- 191144, г Санкт-Петербург, ул Новгородская д. 20, корп. Литер А
Срок внесения задатка – с 04 февраля 2026 г. по 02 марта 2026 г. Задаток должен поступить на указанный в информационном сообщении счет Продавца не позднее 03 марта 2026 г.
Получатель: АО "Российский аукционный дом" ИНН: 7838430413 КПП: 783801001 Номер расчётного счёта: 40702810390350001935 Банк: ПАО "БАНК "САНКТ-ПЕТЕРБУРГ" Номер корреспондентского счёта: 30101810900000000790 БИК: 044030790
Согласно информационному сообщению
Согласно информационному сообщению
Согласно информационному сообщению
Согласно информационному сообщению
Ограничений участия отдельных категорий физических и юридических лиц, в том числе иностранных, помимо указанных в пункте 1 статьи 5 Федерального закона «О приватизации государственного и муниципального имущества» не установлено.
Порядок определения победителя указан в информационном сообщении, размещенном на официальном сайте КИО в сети «Интернет» www.commim.spb.ru, на официальном сайте Продавца в сети «Интернет» www.auction-house.ru, на сайте Санкт-Петербургского государственного казенного учреждения «Имущество Санкт-Петербурга» в сети «Интернет» http://gkuim.commim.gov.spb.ru/, на сайте Оператора в сети «Интернет» www.lot-online.ru, в приложении к данному информационному сообщению.
Подведение итогов торгов происходит на электронной торговой площадке, расположенной на сайте www.lot-online.ru, после проведения процедуры аукциона.
Победитель либо Единственный участник аукциона обязаны сверх цены продажи Имущества в течение 5 (пяти) рабочих дней с даты подведения итогов аукциона оплатить Продавцу в валюте Российской Федерации вознаграждение (НДС не облагается на основании пункта 1 статьи 145.1 НК РФ) в связи с организацией и проведением торгов посредством функционала информационной системы «Электронная торговая площадка» акционерного общества «Российский аукционный дом» в размере 3 процента от цены Имущества, определенной по итогам аукциона
Согласно п.4 ст.448 ГК РФ организатор вправе отказаться от проведения аукциона не позднее чем за три дня до наступления даты его проведения.
С дополнительной информацией претенденты могут ознакомиться по телефону: 89672464408 или по электронной почте informspb@auction-house.ru . Форма заявки, форма договора купли-продажи также прилагаются к настоящему информационному сообщению.
Покупатель обязан согласовывать все наружные ремонтно-строительные работы с Комитетом по государственному контролю, использованию и охране памятников истории и культуры.
в течение 5 (пяти) рабочих дней с даты подведения итогов аукциона
Срок внесения задатка – с 04 февраля 2026 г. по 02 марта 2026 г. Задаток должен поступить на указанный в информационном сообщении счет Продавца не позднее 03 марта 2026 г.
АО "РАД"
190000, Санкт-Петербург, пер.Гривцова, д.5, литер. В
8(812)7775757

