Каталог лотов
Перейти в каталог
Иное
270 лотов
Все лоты
04 Март 2026
04:02:48
(МСК)

Опубликовано:

24.06.2025 14:31

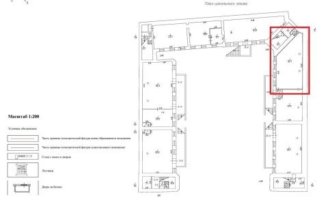
Коммерческое помещение площадью 82,7 кв.м. в новом жилом комплексе UNO

15 200 000 
Начальная цена 15 200 000 
Успей купить
 
Направление продаж
Имущество частных собственников
Вид процедуры
Аукцион с открытой формой подачи предложений
Код лота
РАД-416859
Код процедуры
236077
Регион
Санкт-Петербург
Адрес
Санкт-Петербург, Лиговский пр-кт, дом 56, корп. б
Продается нежилое коммерческое помещение площадью 82,7 кв.м. в новом жилом комплексе UNO – статусный апарт-отель на Лиговском 56Б, в здании бывшего доходного дома 1901 года. Помещение расположено на цокольном этаже, имеет отдельный выход во двор комплекса, где расположены зоны отдыха и постоянный уличный поток. Апарт-отель UNO это платежеспособная молодая аудитория, которая готова пользоваться услугами апарт-отеля и его сервисами. Лиговский проспект исторически был одной из главных магистралей, по которой въезжали в Санкт-Петербург — столицу Империи. Сегодня Лиговский — это отели и бутики, памятники архитектуры и креативные пространства, модные рестораны и лабиринты аутентичных дворов с атмосферными парадными. Пешком: • 5 минут — м. «Лиговский проспект» • 7 минут — м. «Площадь Восстания» • 8 минут — Московский вокзал • 10 минут — Невский проспект На машине: • 10 минут — Витебский вокзал • 15 минут — Балтийский вокзал

Реквизиты Оператора

Для оплаты задатка и/или депозита отсканируйте QR-код в приложении банка (смотрите инструкцию) или используйте реквизиты

Менеджер продаж

Хлебников Владимир Анатольевич
+7-931-348-11-75
+7-931-348-11-75
проект ДКП.DOC , 24.06.25 14:31 Скачать (ЭП)
Договор о задатке.doc , 24.06.25 14:31 Скачать (ЭП)
Инф сообщение.docx , 24.06.25 14:31 Скачать (ЭП)
АО "РАД-ХОЛДИНГ"
Хлебников Владимир Анатольевич
199034, г Санкт-Петербург, линия 16-я В.О., д 7
hlebnikov@radholding.ru
88007775757
Ждем Вас в нашем Telegram

Вы можете использовать мессенджер, установленный на любом устройстве - ПК, планшете или телефоне

Мобильное приложение РАД
Универсальная электронная площадка РАД в удобном формате мобильного приложения